疏散路徑的幾種形式!T形、環形走道的宜與忌!
疏散路徑的確立,是消防安全疏散設計的根本!
常見的疏散路徑形式,主要有一字形、環形(回形)、T形(丁字形)三種,建筑平面的安全疏散路徑,通常由這三種形式構成!
使用功能和疏散距離,是決定疏散路徑形式的關鍵要素!
相關專題:
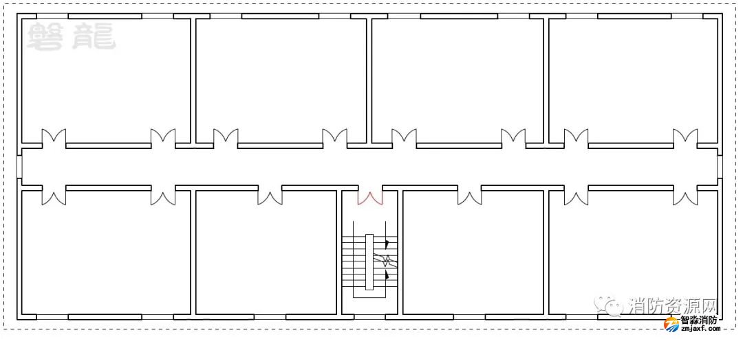
一字形走道是最常見的疏散走道(圖示1、圖示2),一字形走道的安全疏散距離,《建規》5.5.17有明確的適應規則:
一、圖示1的疏散走道,設置有兩個疏散樓梯,兩個安全出口之間的疏散門具備雙向疏散功能,對應走道為雙向疏散走道,安全出口兩端的走道為單向疏散走道,即袋形走道:

(圖示1)
二、圖示2的疏散走道,僅設置有一個疏散樓梯,疏散走道的所有疏散門均為單向疏散,整個疏散走道均應視為單向疏散走道,即袋形走道:

(圖示2)
三、關于雙向疏散走道和單向疏散走道(袋形走道)的概念和應用,參專題:雙向.單向走道在安全疏散中的重要意義!
第二章 T形(丁字形)走道
T形走道也稱為丁字形走道,是消防安全疏散設計中不可回避的形式,關于T形疏散走道的疏散距離計算,參專題:T形走道-宜與忌!疏散距離計算規則!
一、T形走道的疏散距離應考慮可能在T形走道內往返的距離(圖示3):

(圖示3)
二、T形走道的每個出口方向,均應能到達安全出口(圖示4)。

(圖示4)
三、僅有一個方向能到達安全出口的T形走道,不宜采用:
圖示5所示的T形走道,僅有一個方向能到達安全出口,當人員從T字形走道出來時,如向左邊疏散,則因折返而大幅增加疏散時間,不應許可。
確有需要時,應按袋形走道處理,并按最不利情況下的折返長度復核安全距離。

(圖示5)
四、倒T形走道的疏散形式,應予禁止:
圖示6中,出現了倒T形走道的疏散形式,人員可能在端頭的走道上來回往返,應予禁止。

(圖示6)
五、特殊形式的T形疏散走道,應嚴格控制疏散距離:
圖示7類似的疏散走道,陰影部位的短走道,存在誤導疏散的可能,不宜采用。確需采用時,應按直線方向行走的疏散習慣,嚴格復核疏散距離。

(圖示7)
六、以上T形疏散走道的疏散距離計算,參專題:T形走道-宜與忌!疏散距離計算規則!
第三章 環形(回形)走道
一、環形(回形)走道是較為常見的形式,高層建筑的核心筒,通常會設置環形疏散走道(圖示8)。

(圖示8)
注:環形走道形式多樣,圖示8僅供參考!
二、沒有安全出口的環形疏散路線,不應許可!
1、圖示9、圖示10所示的疏散走道,示例部位形成環形疏散路徑,沒有安全出口,不應采用。

(圖示9)

(圖示10)
三、帶T形短走道的環形疏散路線,應嚴格控制疏散距離!
1、圖示11的方案,上部區域形成了無安全出口的環形通道,不應許可。下部左右兩側形成T形路徑,這類T形路徑不宜采用。

(圖示11)
2、圖示12的方案,左側區域的T形路徑出來以后,沒有直達安全出口,不宜采用,右側區域的T形路徑應嚴格控制疏散距離。

(圖示12)
四、關于T形走道的疏散方案及疏散距離計算,參專題: T形走道-宜與忌!疏散距離計算規則!
海灣消防安全有限公司主營:GST海灣消防報警設備銷售,消防工程施工改造,氣體滅火、電氣/漏電火災、消防水系統施工安裝,售后維修保養,檢測,調試,海灣消防網站:http://m.jianlaiyiyao.com/;海灣消防服務熱線:4006-598-119
本頁關鍵詞:


蘇公網安備32058102002148號