推薦|一問教你快速看懂消防工程圖
想快速看懂消防工程圖,首先要對消防系統分類組成有一定的了解,仔細看清楚總平面圖,然后把圖紙設計說明和圖例瀏覽一遍,其中有各種符號標示需要熟記,然后再去看系統圖,只要多花點時間就沒問題,自然而然就能看下去了,當然,看消防圖紙也是有方法的,下面詳解!

消防圖紙識圖方法:
(1)消防圖紙分:消防水、消防電、還有氣體消防;
(2)不管是什么,任何一份圖紙,都要先看設計說明、圖例;
(3)設計說明是圖紙的提綱,讀懂它能把握設計意圖、內容等;
(4)不同的設計可能圖例不一樣;
(5)然后是系統圖他是一本書的目錄,讀懂它就知道他整個系統的工作狀態及連接方式;
(6)最后才是平面圖,他事實是對系統圖的進一步細化,表明設備的安裝方式、位置及連接方式等;
(7)注意:讀圖時平面圖與系統圖要進行對照,用以將整個系統聯系起來。
先簡要了解下消防系統的分類與組成:


自動噴水滅火系統根據所使用噴頭的型式,可分為閉式自動噴水滅火系統和開式自動噴水滅火系統兩大類。

根據系統的用途和配置狀況,自動噴水滅火系統又分為濕式系統、干式系統、預作用系統、雨淋系統、水幕系統、自動噴水-泡沫聯用系統等。自動噴水滅火系統的分類見圖。

濕式自動噴水滅火系統(以下簡稱濕式系統)由閉式噴頭、濕式報警閥組、水流指示器或壓力開關、供水與配水管道以及供水設施等組成,在準工作狀態下,管道內充滿用于啟動系統的有壓水。

干式自動噴水滅火系統(以下簡稱干式系統)由閉式噴頭、干式報警閥組、水流指示器或壓力開關、供水與配水管道、充氣設備以及供水設施等組成,在準工作狀態下,配水管道內充滿用于啟動系統的有壓氣體。
干式系統的啟動原理與濕式系統相似,只是將傳輸噴頭開放信號的介質由有壓水改為有壓氣體。

預作用自動噴水滅火系統(以下簡稱預作用系統)由閉式噴頭、雨淋閥組、水流報警裝置、供水與配水管道、充氣設備和供水設施等組成,在準工作狀態時配水管道內不充水,由火災報警系統自動開啟雨淋閥后,轉換為濕式系統。
預作用系統與濕式系統、干式系統的不同之處,在于系統采用雨淋閥,并配套設置火災自動報警系統。

雨淋系統由開式噴頭、雨淋閥組、水流報警裝置、供水與配水管道以及供水設施等組成。
與前幾種系統的不同之處在于:
雨淋系統采用開式噴頭,由雨淋閥控制噴水范圍,由配套的火災自動報警系統或傳動管系統啟動雨淋閥。
雨淋系統有電動、液動和氣動控制方式。

水幕系統由開式灑水噴頭或水幕噴頭、雨淋報警閥組或感溫雨淋閥、供水與配水管道、控制閥以及水流報警裝置(水流指示器或壓力開關)等組成。
與前幾種系統不同的是:水幕系統不具備直接滅火的能力,是用于擋煙阻火和冷卻分隔物。
配置供給泡沫混合液的設備后,組成既可噴水又可以噴泡沫的自動噴水-泡沫聯用系統。
氣體滅火系統分類和組成:
按應用方式進行分類,可分為兩種:
1、全淹沒滅火系統;
2、局部應用滅火系統。
下面我們來分別介紹這兩種滅火系統各自的特點:
1、全淹沒滅火系統

全淹沒滅火系統是指在規定的時間內,向防護區噴射一定濃度的氣體滅火劑,并使其均勻地充滿整個防護區的滅火系統。全淹沒滅火系統的噴頭均勻布置在防護區的頂部,火災發生時,噴射的滅火劑與空氣的混合氣體,迅速在此空間內建立有效撲滅火災的滅火濃度,并將滅火劑濃度保持一段所需要的時間,即通過滅火劑氣體將封閉空間淹沒實施滅火。
2、局部應用滅火系統

局部應用滅火系統指在規定的時間內向保護對象以設計噴射率直接噴射氣體,在保護對象周圍形成局部高濃度,并持續一定時間的滅火系統。
局部應用滅火系統的噴頭均勻布置在保護對象的四周,火災發生時,將滅火劑直接而集中地噴射到保護對象上,使其籠罩整個保護對象外表面,即在保護對象周圍局部范圍內達到較高的滅火劑氣體濃度實施滅火。
按加壓方式分類:
滅火系統按加壓方式進行分類,可分為三種:
1、自壓式氣體滅火系統
自壓式氣體滅火系統是指滅火劑無須加壓而是依靠自身飽和蒸氣壓力進行輸送的滅火系統。
2、內儲壓式氣體滅火系統
內儲壓式氣體滅火系統是指滅火劑在瓶組內用惰性氣體進行加壓儲存,系統動作時滅火劑靠瓶組內的充壓氣體進行輸送的滅火系統。
3、外儲壓式氣體滅火系統
最后我們講解下外儲壓式氣體滅火系統:
外儲壓式氣體滅火系統是指系統動作時滅火劑由專設的充壓氣體瓶組按設計壓力對其進行充壓的滅火系統。
系統的組成:
上面我們講了滅火系統的分類,接下來我們來學習滅火系統的組成,滅火系統組成分為五種,分別為:
(一)高壓二氧化碳滅火系統、內儲壓式七氟丙烷滅火系統
(二)外儲壓式七氟丙烷滅火系統
(三)惰性氣體滅火系統
(四)低壓二氧化碳滅火系統
(五)無管網滅火系統
下面我們會具體介紹這五種組成系統:
(一)高壓二氧化碳滅火系統、內儲壓式七氟丙烷滅火系統
首先我們來介紹高壓二氧化碳滅火系統、內儲壓式七氟丙烷滅火系統:

這類系統由滅火劑瓶組、驅動氣體瓶組(可選)、單向閥、選擇閥、驅動裝置、集流管、連接管、噴頭、信號反饋裝置、安全泄放裝置、控制盤、檢漏裝置、管道管件及吊鉤支架等組成。
(二)外儲壓式七氟丙烷滅火系統

該系統由滅火劑瓶組、加壓氣體瓶組、驅動氣體瓶組(可選)、單向閥、選擇閥、減壓裝置、驅動裝置、集流管、連接管、噴頭、信號反饋裝置、安全泄放裝置、控制盤、檢漏裝置、管道管件及吊鉤支架等組成。
(三)惰性氣體滅火系統

惰性氣體滅火系統由滅火劑瓶組、驅動氣體瓶組(可選)、單向閥、選擇閥、減壓裝置、驅動裝置、集流管、連接管、噴頭、信號反饋裝置、安全泄放裝置、控制盤、檢漏裝置、管道管件及吊鉤支架等組成。
(四)低壓二氧化碳滅火系統

該系統由滅火劑儲存裝置、總控閥、驅動器、噴頭、管道超壓泄放裝置、信號反饋裝置、控制器等組成。
(五)無管網滅火系統

無管網滅火系統又分為兩種裝置系統,分別是:
1、柜式氣體滅火裝置;
2、懸掛式氣體滅火裝置。
下面我們來分別介紹這兩種滅火系統的特點;
1、柜式氣體滅火裝置
該裝置一般由滅火劑瓶組、驅動氣體瓶組(可選)、容器閥、減壓裝置(針對惰性氣體滅火裝置)、驅動裝置、集流管(只限多瓶組)、連接管、噴頭、信號反饋裝置、安全泄放裝置、控制盤、檢漏裝置、管道管件等組成。
2、懸掛式氣體滅火裝置
該裝置由滅火劑儲存容器、啟動釋放組件、懸掛支架等組成。
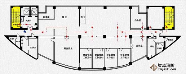
看消防圖紙,如何一眼秒懂?
消防工程圖紙一般分給排水(自動噴淋、消火栓、氣體滅火)和電氣(火災自動報警),有的建設方也會讓消防公司來做防排煙部分,消防預算根據專業分類,特定的設備安裝費用在消防安裝定額里都能找到。
(1)比如噴頭、水噴淋管道、支吊架、消火栓、報警閥、探頭、模塊、報警設備等,其它通用部分就套相應專業定額,
(2)比如消火栓管道安裝套給排水管道定額,泵房的管道安裝套工業管道定額,消防泵的安裝套機械設備安裝定額,閥門法蘭安裝套工業管道定額,報警部分的線管安裝套電氣安裝定額等等。
(3)材料的算法:設備數量按圖數就行了,管道,線管也要靠自己來完善。
火災探測器、報警器特征表示法:
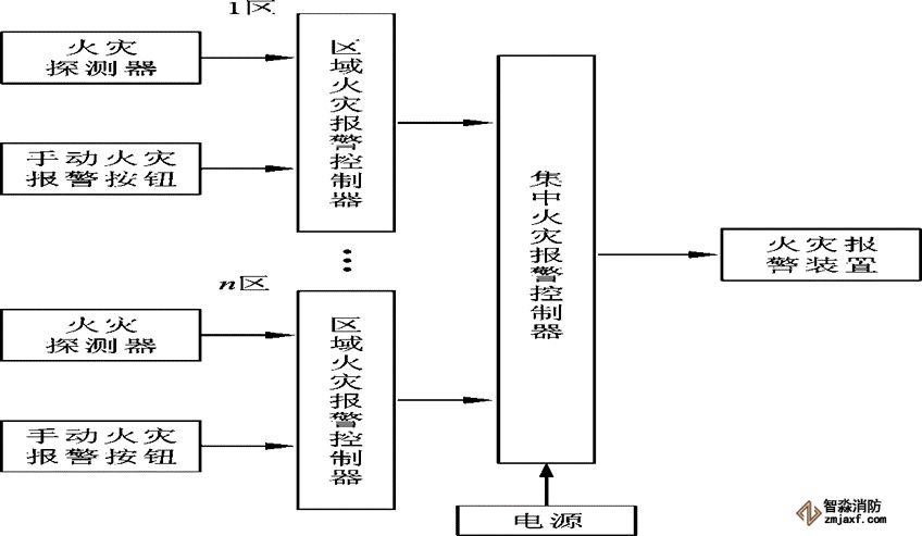
區域報警系統:

集中報警系統:

控制中心報警系統:

GA/T227-1999火災探測器產品型號編制方法:

火災探測器分類代號:

應用范圍特征:

感溫火災探測器敏感方式:

感溫火災探測器敏感元件特征:

感煙火災探測器、感光大災探測器、 可燃氣體探測器傳感器特征表示法:

復合式火災探測器傳感器特征表示法:

火災探測器產品型號編制示例:
a.JTW一JD-Ⅰ易熔合金定溫火災探測器,Ⅰ級靈敏度;
b.JTW-SC雙金屬差溫火災探測器;
c.JTW-ZCD-Ⅲ熱敏電阻差定溫火災探測器,Ⅲ級靈敏度;
d.JTYC-LZ 船用離子感煙火災探測器。
e.JTGB-ZW 防爆型紫外感光火災探測器;
f.JTF-YM 復合式感煙感溫火災探測器;
g.JTF-YW-HS復合式紅外光束感煙感溫火災探測器;
h.JTY-LZ-C離子感煙火災探測器(第三次改型)。
火災報警器產品型號:

應用范圍特征:

分類特征代號:

結構特征代號:



系統圖:


消防工程基本圖形符號及工程圖例:
(1)消防工程滅火器符號

(2)消防工程固定滅火器系統符號

(3)消防工程自動報警設備符號

(4)消防工程滅火設備安裝處符號

(5)消防工程基本圖形符號

(6)消防工程輔助符號

(7)消防管路及配件符號

在消防圖紙中XL、WL、TL、JL、FL、PL、GL、NL是什么意思?
在消防圖紙中,XL代表消防立管、WL代表污水立管、TL代表通氣立管、JL代表給水立管、FL代表廢水立管(排糞立管)、PL代表排水立管(或GL)、NL代表空調凝結水立管。
例如:XL-1、XL-2、XL-3是指第幾條的意思。
XL代表的意思是X代表消防;
L代表立管,以此類推WL,W代表污不水;假如圖紙上標識著XL-45標識編號45的消防立管。
智淼君安(江蘇)消防工程技術有限公司http://m.jianlaiyiyao.com/海灣消防安全有限公司主營:GST海灣消防報警設備銷售,消防工程施工改造,氣體滅火、電氣/漏電火災、消防水系統施工安裝,售后維修保養,檢測,調試,海灣消防網站:http://m.jianlaiyiyao.com/;海灣消防服務熱線:4006-598-119
本頁關鍵詞:


蘇公網安備32058102002148號