海灣消防百科|消防建筑防煙排煙系統技術標準
新版《標準》的5個變化
1、風井面積急劇增大
第3.4.2條防煙樓梯間、獨立前室、合用前室、共用前室和消防電梯前室的機械加壓送風的計算風量應由本規范第3.4.5~第3.4.8條的規定計算確定。
當系統負擔建筑高度大于24m時,防煙樓梯間、獨立前室、合用前室和消防電梯前室應按計算值與表3.4.2-1~表3.4.2-4的值中的較大值確定。

注:
1、表3.4.2-1至表3.4.2-4的風量按開啟2.0m×1.6m的雙扇門確定。當采用單扇門時,其風量可乘以0.75系數計算;
2、表中風量按開啟著火層及其上下兩層,共開啟三層的風量計算;
3、表中風量的選取應按建筑高度或層數、風道材料、防火門漏風量等因素綜合確定;
4、對于有多個門的獨立前室,其送風量按合用前室確定。
2、風井位置有講究
第3.1.3-2條當獨立前室、共用前室及合用前室的機加壓送風口設置在前室的頂部或正對前室入口的墻面時,樓梯間可采用自然通風系統;當機械加壓送風未設置在前室的頂部或正對前室人口的墻面時,樓梯間應采用機械加壓送風系統。
3、需設置送風機房
第3.3.5-4條送風機宜設置在系統的下部,且應采取保證各層送風量均勻性的措施;
第3.3.5-5條送風機應設置在專用機房內,送風機房并應符合現行國家標準《建筑設計防火規范》GB50016的規定。
4、樓梯間開窗方式
第3.2.1條采用自然通風方式的封閉樓梯間、防煙樓梯間,應在最高部位設置面積不小于1.0㎡的可開啟外窗或開口;當建筑高度大于10m時,尚應在樓梯間的外墻上每5層內設置總面積不小于2.0㎡可開啟外窗或開口,且布置間隔不大于3層。
第3.2.2條前室采用自然通風方式時,獨立前室、消防電梯前室可開啟外窗或開口的面積不應小于2.0㎡,合用前室、共用前室不應小于3.0㎡。
第3.2.4條可開啟外窗應方便直接開啟;設置在高處不便于直接開啟的可開啟外窗應在距地面高度為1.3m~1.5m的位置設置手動開啟裝置。
第3.3.11條設置機械加壓送風系統的封閉樓梯間、防煙樓梯間,尚應在其頂部設置不小于1㎡的固定窗。靠外墻的防煙樓梯間,尚應在其外墻上每5層內設置總面積不小于2㎡的固定窗。海灣消防www.gstcp.com
5、風道材料選擇
第3.3.7條機械加壓送風系統應采用管道送風,且不應采用土建風道。送風管道應采用不燃材料制作且內壁應光滑。當送風管道內壁為金屬時,設計風速不應大于20m/s;當送風管道內壁為非金屬時,設計風速不應大于15m/s;送風管道的厚度應符合現行國家標準《通風與空調工程施工質量驗收規范》GB50243的規定。
第3.3.8條機械加壓送風管道的設置和耐火極限應符合下列要求:
1、豎向設置的送風管道應獨立設置在管道井內,當確有困難時,未設置在管道井內或與其它管道合用管道井的送風管道,其耐火極限不應低于1.0h;
2、水平設置的送風管道,當設置在吊頂內時,其耐火極限不應低于0.5h;當未設置在吊頂內時,其耐火極限不應低于1.0h。
新版《圖示》的8個變化
1、第1頁在“總則”前增加序號“1”。

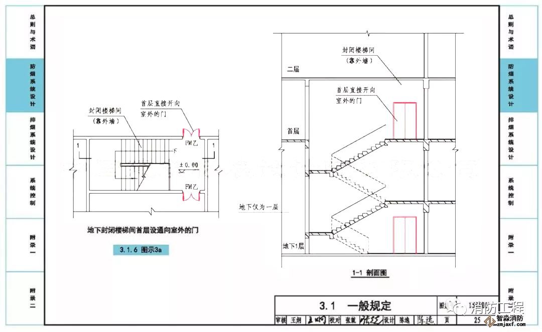
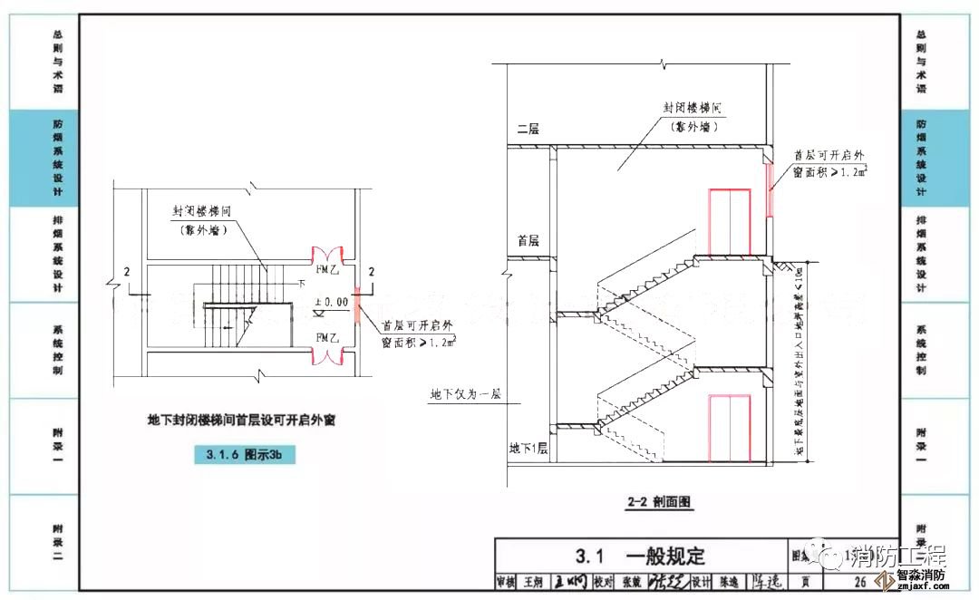
2、第25頁、第26頁替換了其中的平面圖和剖面圖,使其對標準的原意更準確。


3、第79頁的“4.2.4圖示3a”中刪除了“L1≥1.5m”的標注,同時,“注釋2”中也刪除了同樣內容。

4、第98頁的“4.4.3圖示”中排煙支管上增加了“280℃排煙防火閥”,刪除了“風口控制要求”中“常閉排煙口”280℃自動關閉的字樣。

5、第112頁的“4.4.12圖示3”中側墻上安裝常閉多葉排煙口前,排煙支管上增加了“280℃排煙防火閥”。

6、第138頁的正文中,刪除第4.6.5條的第3款。

7、第140頁的正文公式4.6.10中,“t”改為“火災增長時間”。

8、第143頁“第4.6.12條[算例1]”:一是字體小了;二是結合《自動噴水滅火系統設計規范》GB50084-2017,將前廳排煙計算從“有噴淋”改為“無噴淋”。

海灣消防安全有限公司主營:GST海灣消防報警設備銷售,消防工程施工改造,氣體滅火、電氣/漏電火災、消防水系統施工安裝,售后維修保養,檢測,調試,海灣消防網站:http://m.jianlaiyiyao.com/;海灣消防服務熱線:4006-598-119
本頁關鍵詞:


蘇公網安備32058102002148號